Remodel –
Main level; Existing rooms for new flow, Ceiling features, Kitchen, Front porch
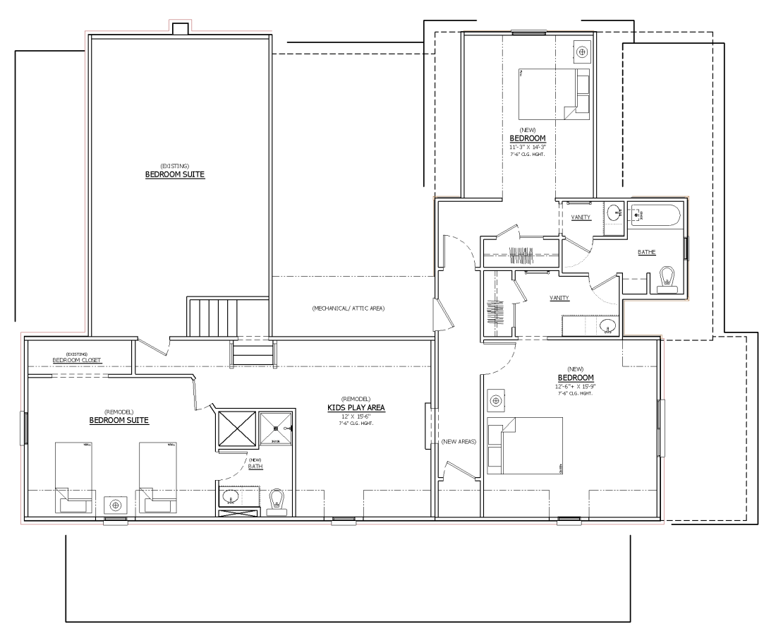
Upper level; Bedroom bath, Play area
Addition –
Main level; Owner’s suite, Laundry, Powder, Pantry, Family room, Screen porch
Upper level; Two bedrooms with J&J bath



