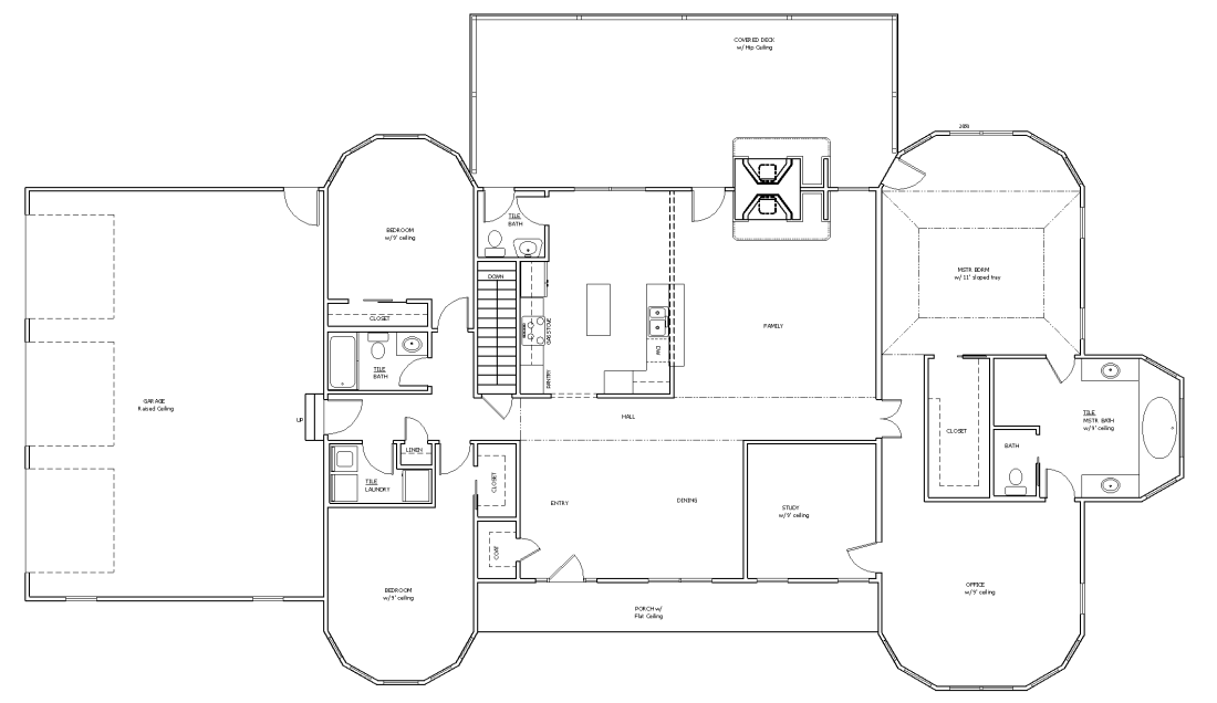
Builder had plans started; hired to complete concept and draft framing package requirements.
Full set
4,818 Heated
6,446 Covered

Main level

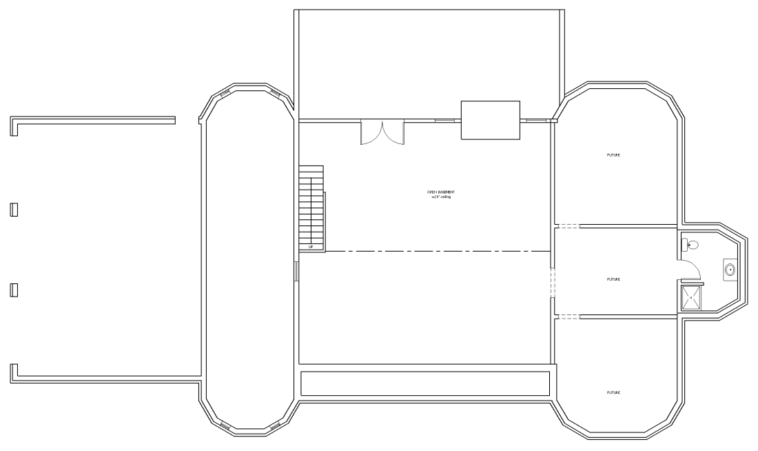
Full unfinished, Basement

Builder had plans started; hired to complete concept and draft framing package requirements.
Full set
4,818 Heated
6,446 Covered

Main level

Full unfinished, Basement
