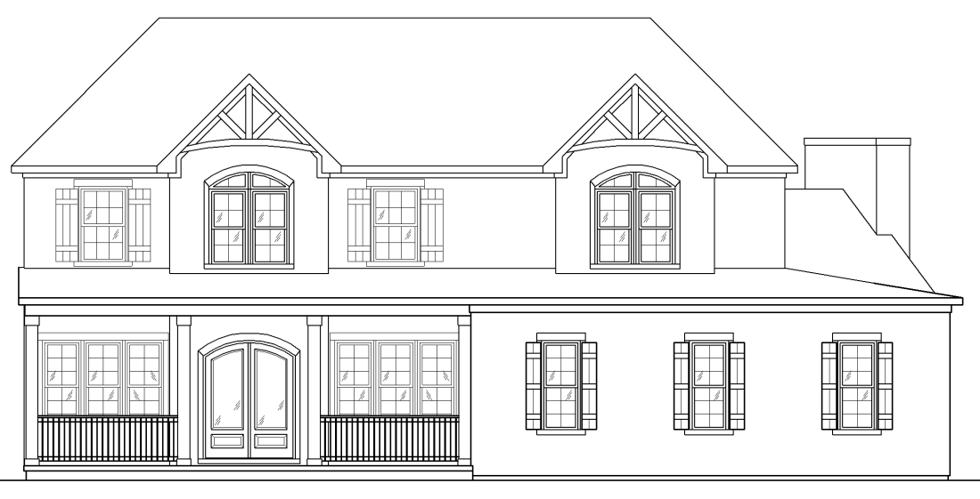
No longer satisfied with their original Architect; hired to complete the concept while making adjustment for an easier build cycle.
Full set
3,877 Heated
5,562 Covered

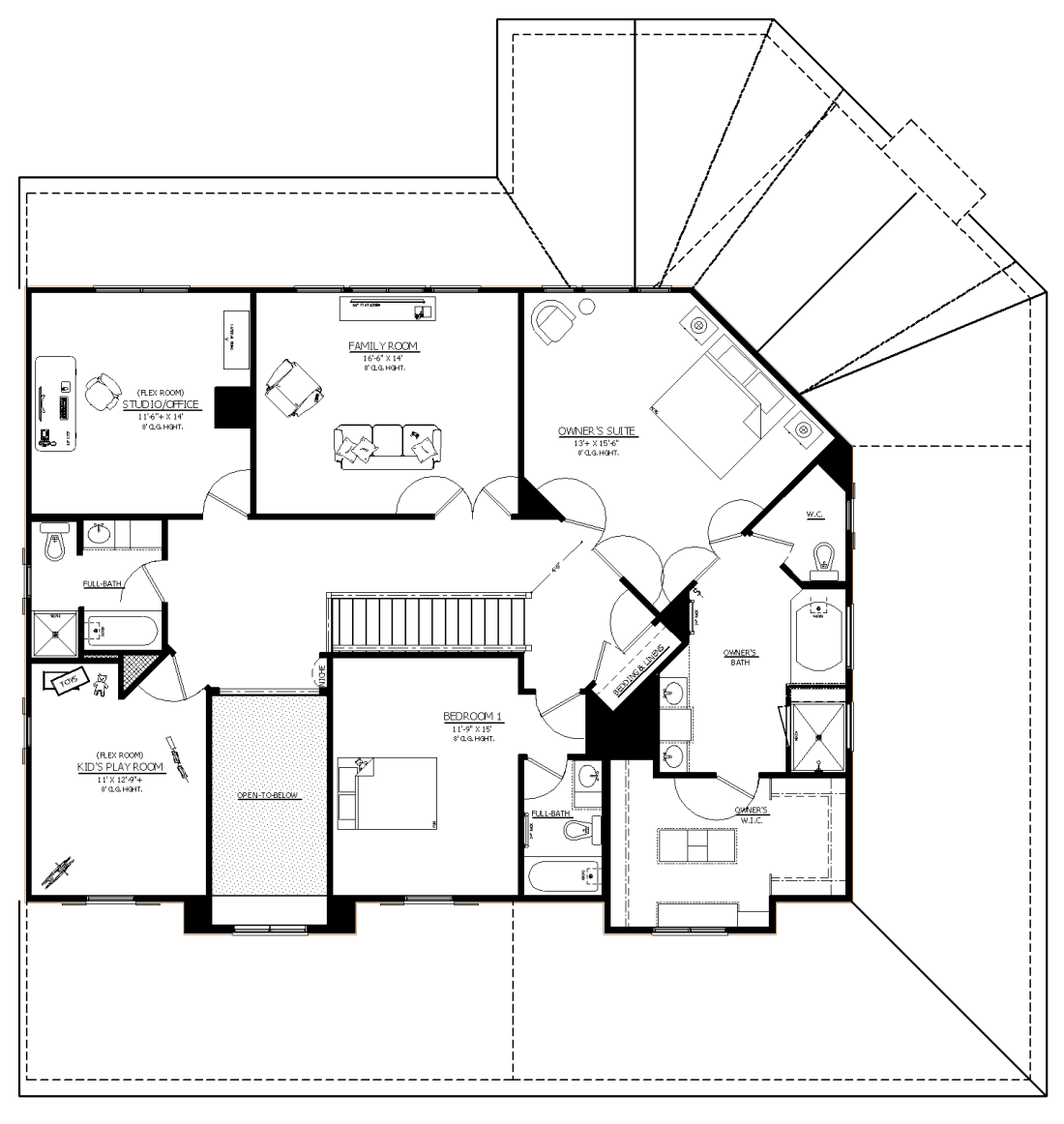
Main level

Upper level

© Copyright Derivative
No longer satisfied with their original Architect; hired to complete the concept while making adjustment for an easier build cycle.
Full set
3,877 Heated
5,562 Covered

Main level

Upper level

© Copyright Derivative