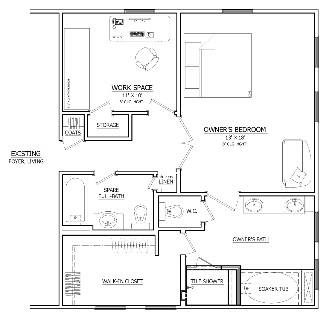
DM ’12, ’17 Remodel and Addition Addition 2017 – Garage Remodel 2012 – Owner’s suite, Office space, Spare bath Related