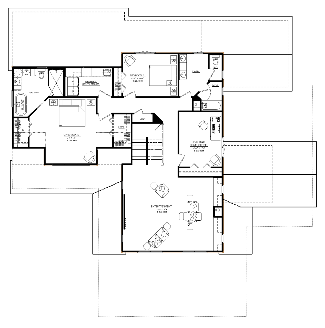
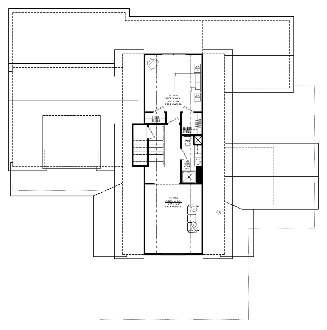
SVK ’17 Estate 4,307 Heated 5,252 Covered + 1,515 Open deck Driveway side Main level Upper level Attic level Related