LBH ’15

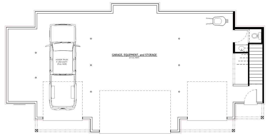
Detach Garage, Equipment, and Storage with an Open Office and Showroom area above; to match Custom Home MJP ’15

LBH

LBH1

LBH2

Leave a comment