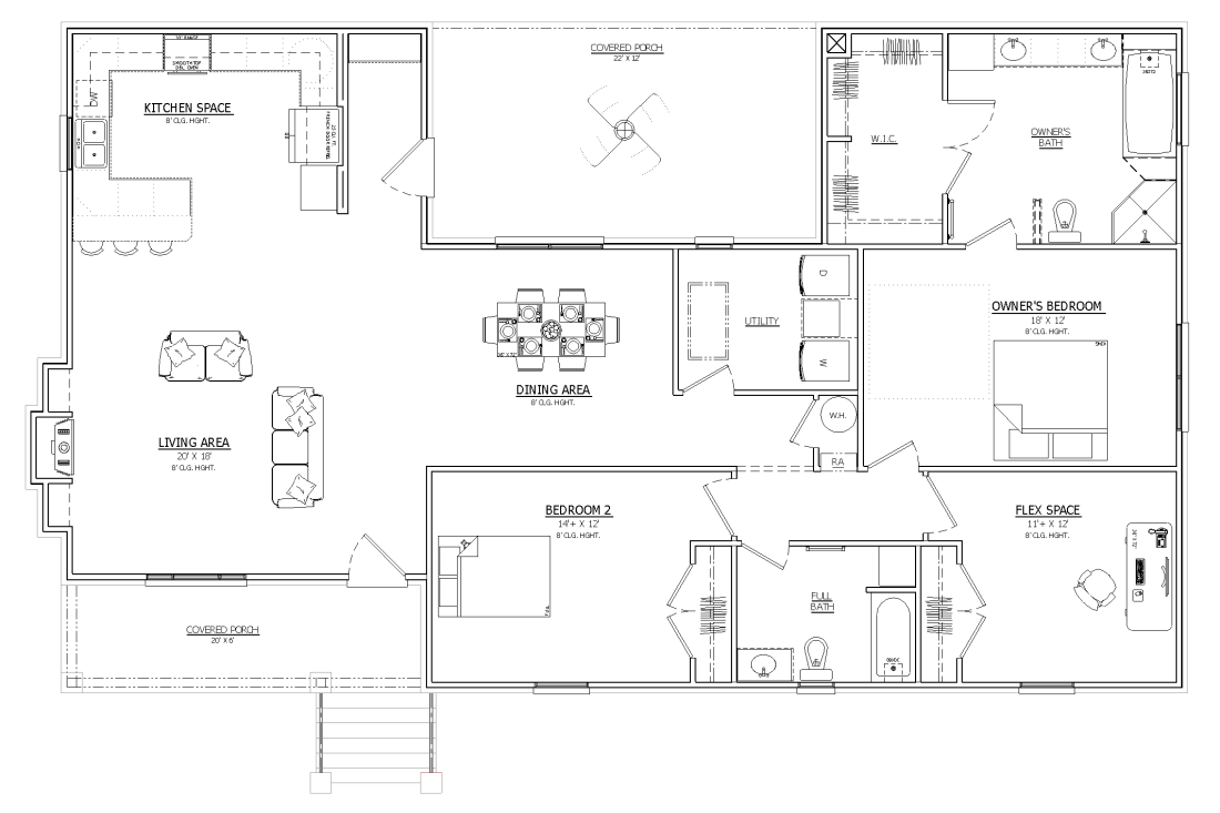
Remodel –
All non-load bearing walls removed, Removal of front porch, Entire new flow with additions
Addition –
Right side rear bump-out, Entire new left side with front porch, Rear covered porch


Remodel –
All non-load bearing walls removed, Removal of front porch, Entire new flow with additions
Addition –
Right side rear bump-out, Entire new left side with front porch, Rear covered porch

