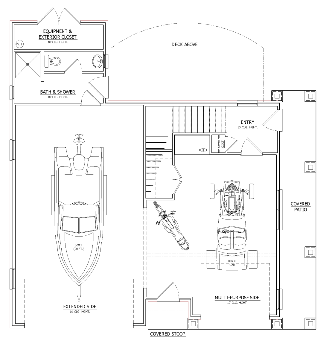
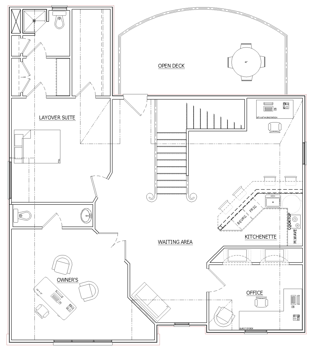
Builder’s client owned an adjoining property in the subdivision/ neighborhood. The client needed to expand the home office, additional garage space for toys, and wanting an in-ground pool on this other lot.
Local ARC approved a new and separate structure for this purpose. Their requirement specified that the “structure” must appear as another single-family home though.

Main level

Upper level

