Builder had concepts started for a few lots in a downtown area and wanted to get in on the modern shotgun home demand. Hired to develop plans from concept and provide two elevations of similar style in that area.
Full set
1,763 Heated
2,262 Covered


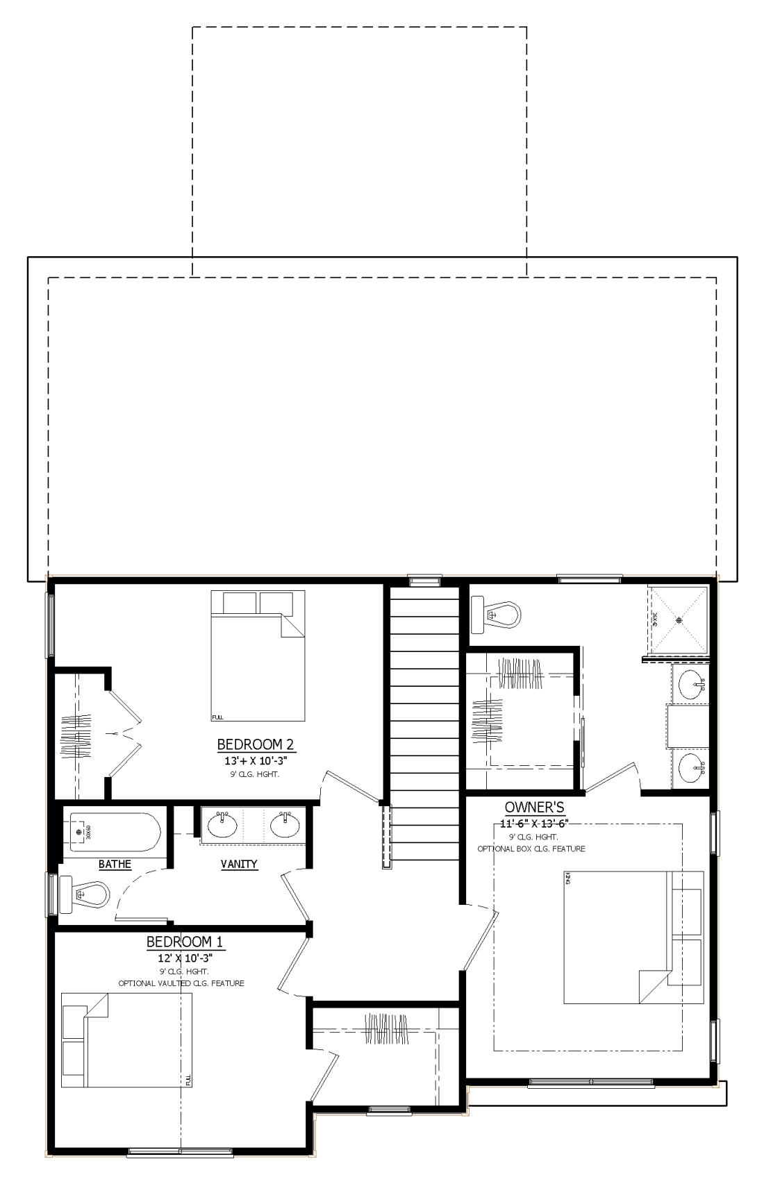
Main level

Upper level

