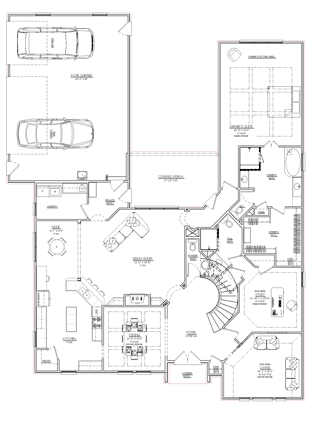
DrL ’14 Hourly Drafting 4,638 Heated 5,772 Covered Main level Upper level © Copyright Derivative Related