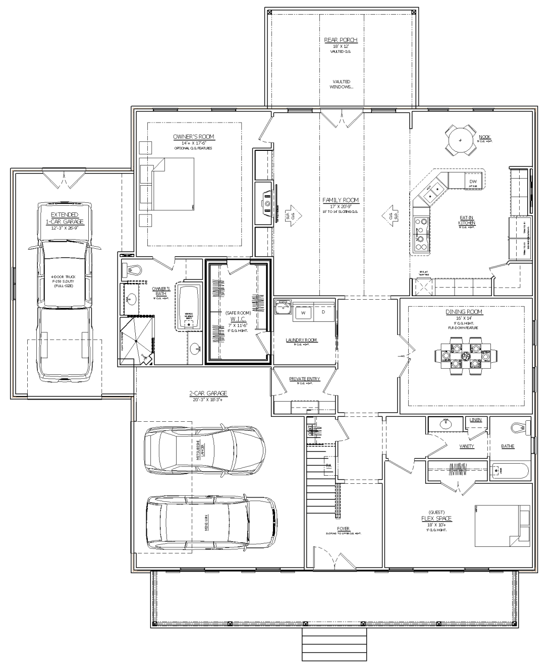
LBV ’14 Available Concept 3,185 Heated 5,121 Covered Main level Upper level, rough layout only Related