Projects by Jason M. Dannenmueller
Menu
Skip to content
Complete
Products
Blacksmith
Contact
ERN ’13
Residence
2,361 Heated
4,592 Covered + 554 Open deck
Main level
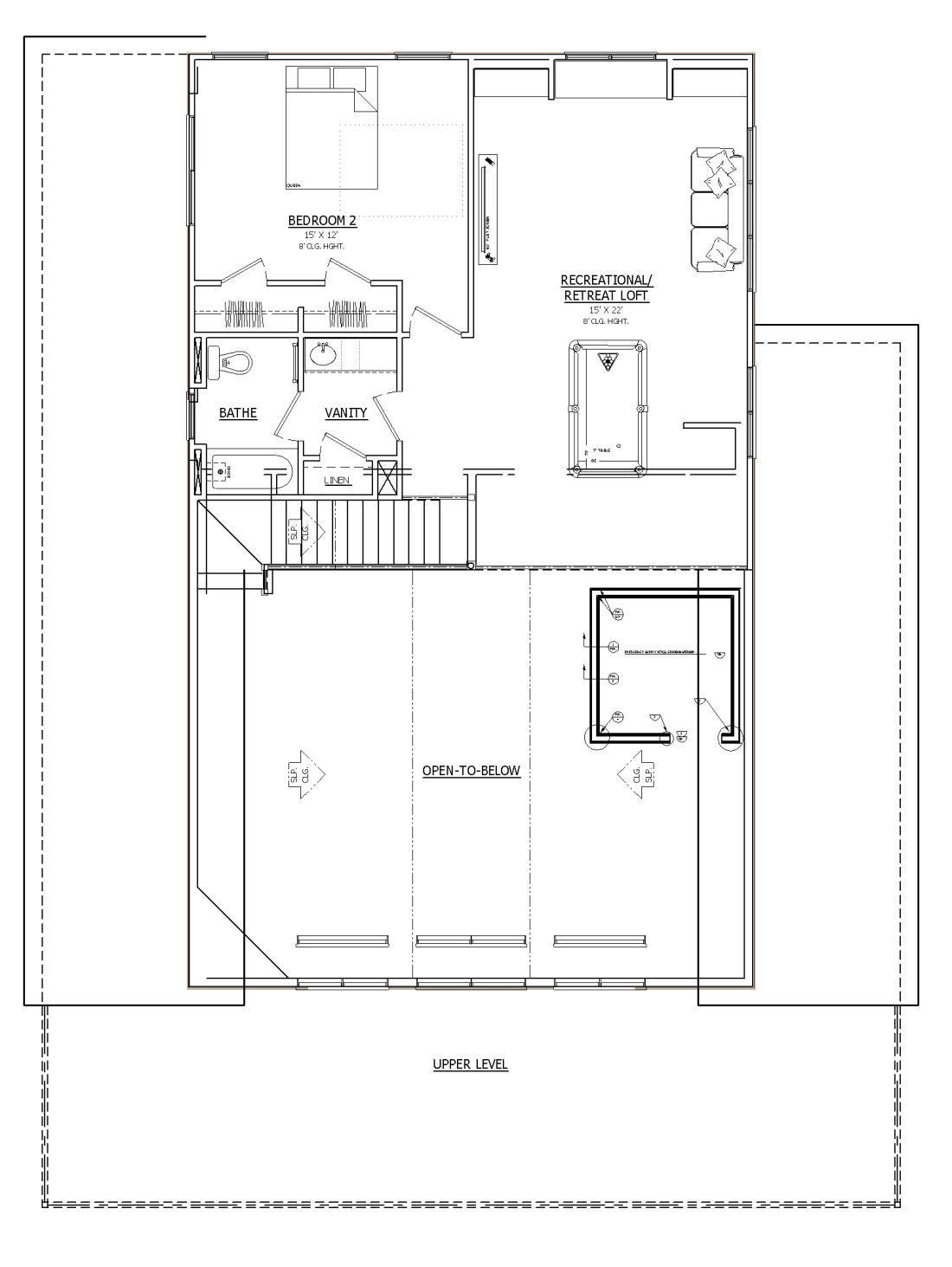
Upper level
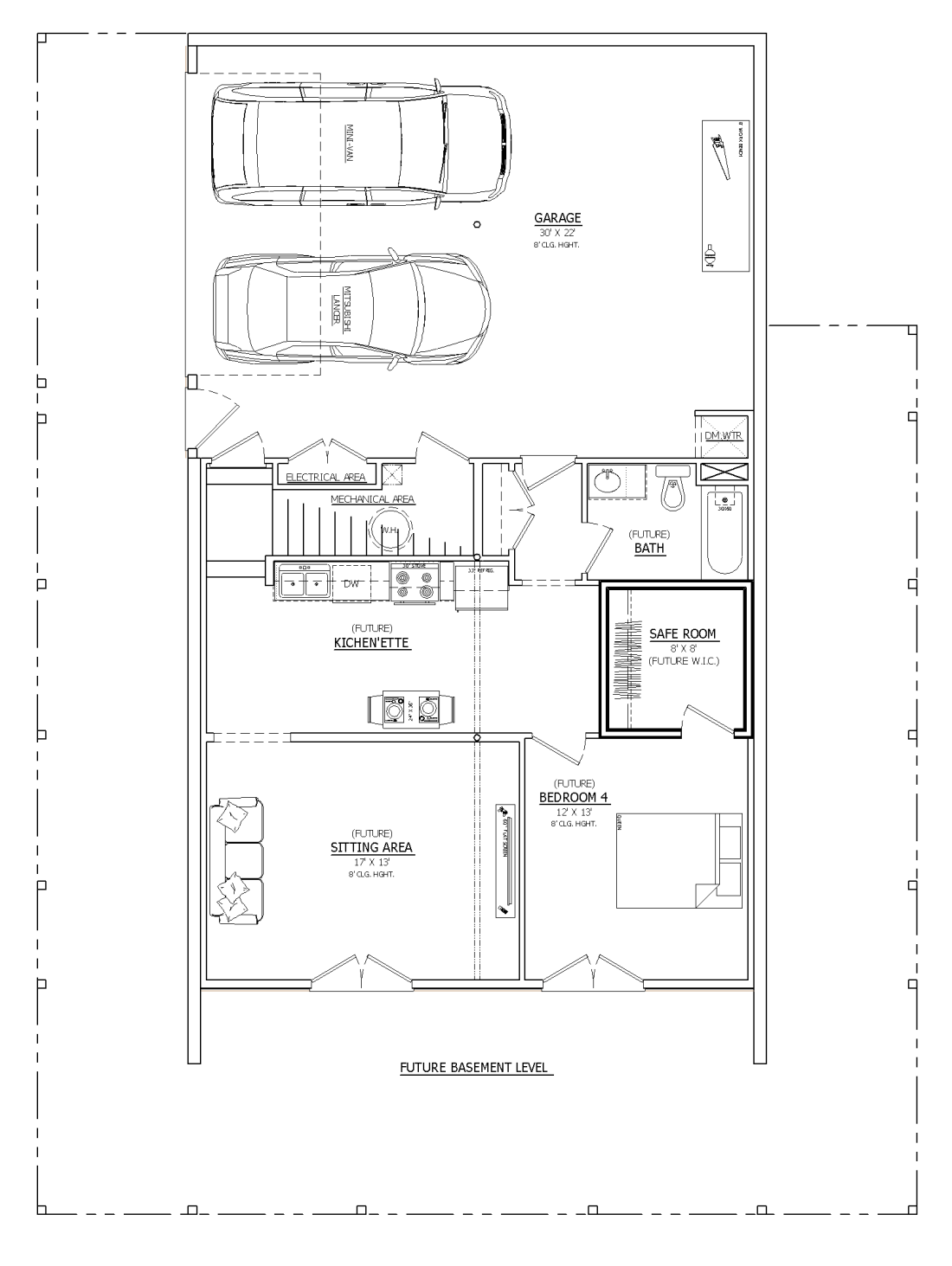
Basement
Related
Leave a comment
Cancel reply
Δ
Post navigation
←
TRP ’12
MK ’13
→
Widgets
Comment
Subscribe
Subscribed
projectsbyjmd.com
Sign me up
Already have a WordPress.com account?
Log in now.
projectsbyjmd.com
Subscribe
Subscribed
Sign up
Log in
Copy shortlink
Report this content
View post in Reader
Manage subscriptions
Collapse this bar
Loading Comments...
Write a Comment...
Email (Required)
Name (Required)
Website