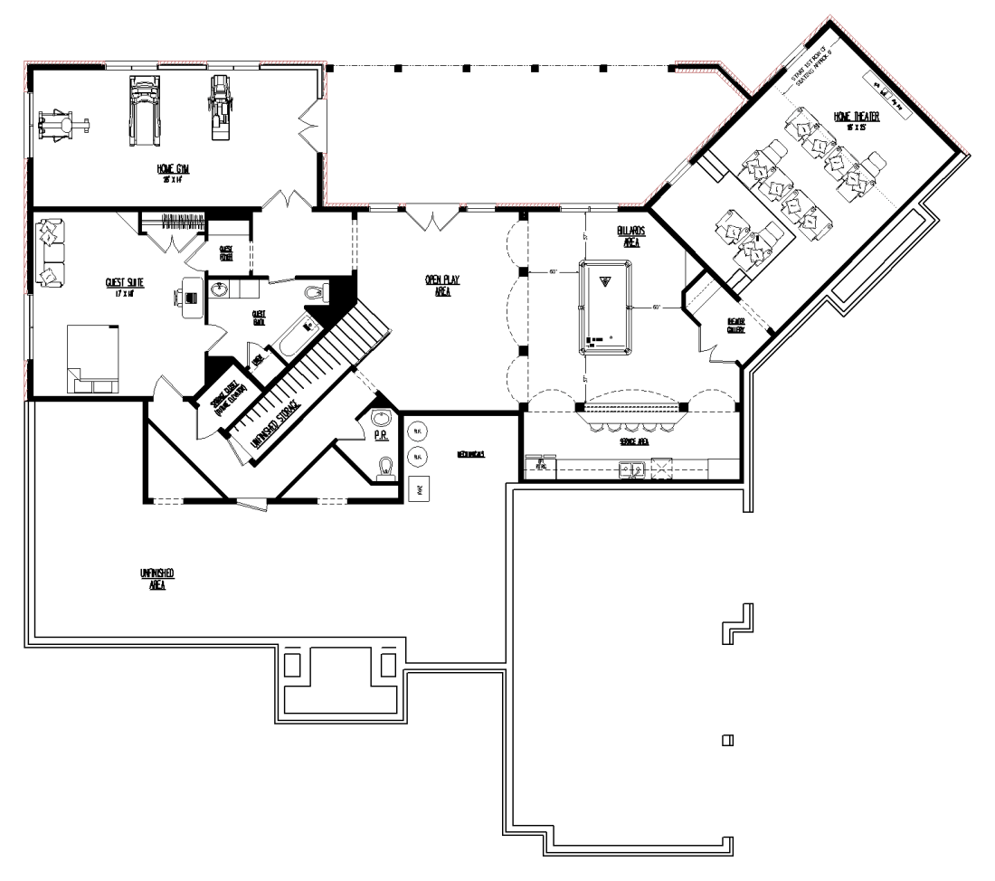
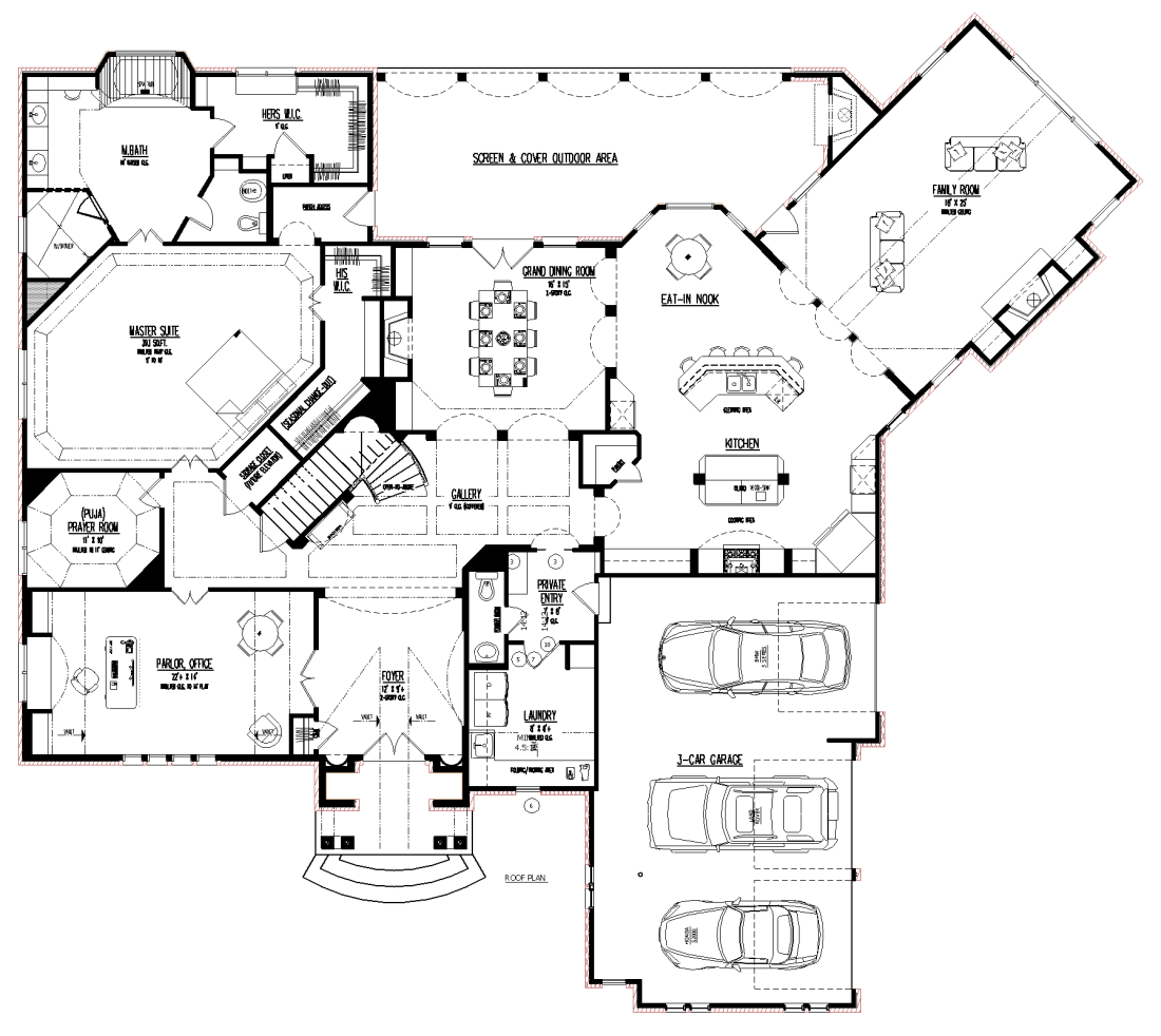
MK ’13 Hourly Drafting 7,331 Heated 11,249 Covered Main level Upper level Basement © Copyright Derivative Related